Villa singola in vendita

Bergamo, Via Stezzano - Colognola
€ 530.000
6 locali 6 locali
397 Mq 397 Mq
3 bagni 3 bagni

Villa singola in vendita

Bergamo, Via Stezzano - Colognola

Descrizione annuncio

BERGAMO - COLOGNOLA

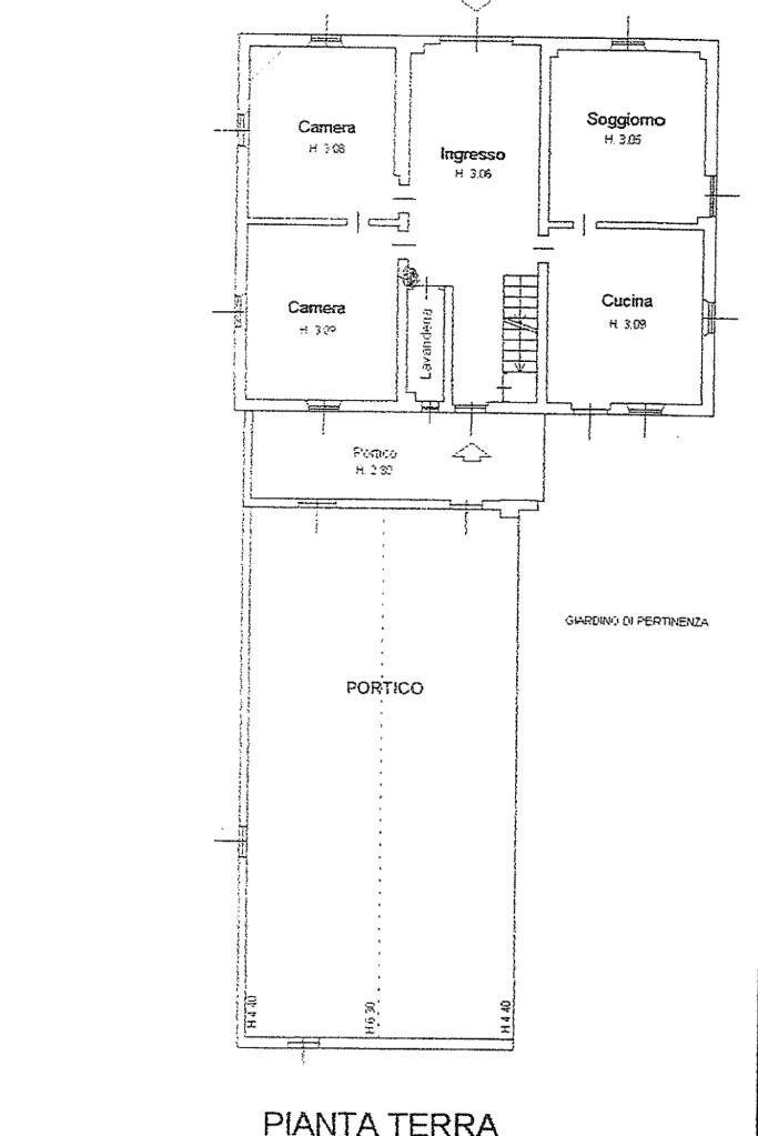
Nel cuore di Colognola, a Bergamo, si propone in vendita villa singola di circa 400 mq, edificata ad inizio 1900 .
La proprietà si distingue per le ampie metrature e la distribuzione razionale degli spazi interni, che offrono grande libertà di personalizzazione in base alle proprie esigenze abitative .

La villa è circondata da un generoso giardino privato, che garantisce privacy e tranquillità, creando un contesto riservato e piacevole pur restando a pochi passi da tutti i principali servizi.
Elemento di particolare interesse è il terreno edificabile, che rende l’immobile ideale anche per un intervento di demolizione e ricostruzione, grazie agli ampi spazi disponibili e alle potenzialità edificatorie.

La posizione strategica consente un rapido collegamento con il centro di Bergamo, mantenendo al tempo stesso il fascino di una zona residenziale prestigiosa e ben abitata.
Soluzione perfetta per chi è alla ricerca di un’opportunità di investimento per realizzare una nuova costruzione su misura.

Affiliato: TECNOBERGAMO . Via Moroni, 121 24122 Bergamo (BG) - Tel. e WhatsApp: 035.044.31.03 //
Fax: 035.044.30.90 // E-mail: // Sito Web: // Pagina Instagram: // Pagina Facebook: //
Ogni agenzia ha un proprio titolare ed è autonoma. Il presente non costituisce elemento contrattuale.

Mostra tutto

Nelle vicinanze

Trasporto pubblico Trasporto pubblico
Stezzano
Stezzano
1,7 Km
Bergamo
Bergamo
2,6 Km
Bergamo FS
Bergamo FS
2,7 Km
540
540
140 m
531
531
170 m
Ricariche auto elettriche Ricariche auto elettriche
A2A BG Scienza
460 m
Icelab Bergamo Palaghiaccio
970 m
A2A BG Ravizza
1,1 Km
A2A BG Fast Canovine
1,5 Km
A2A BG Promessi Sposi
1,5 Km
Scuole Scuole
Istituto Superiore Bortolo Belotti
70 m
Scuola primaria Italo Calvino
150 m
Scuola Media Statale "Muzio"
290 m
Scuola materna Colognola
530 m
Enaip
980 m
Farmacia Farmacia
Farmacia Vaghi
380 m
Farmacia Giassi
1,4 Km
Nuova Farmacia Grumellina
1,5 Km
Farmacia
1,5 Km
Dottor Dottoressa Maria Grazia Scaccaglia
1,6 Km
Ospedali Ospedali
Casa di Cura Beato Luigi Palazzolo
2,2 Km
Associazione psicologia e psicoterapia Il Conventino
2,3 Km
Ospedale Papa Giovanni XXIII
2,5 Km
Humanitas Gavazzeni
2,5 Km
Clinica Castelli
2,8 Km
Supermercati Supermercati
Famila Store
660 m
Eurospin
1,5 Km
Coop
1,5 Km
Conad
1,6 Km
Esselunga di Via San Bernardino
1,7 Km
Negozi Negozi
Antico Forno di Grandi Dario
300 m
Alimentari Savoldelli Isaia
360 m
Star Market's
1,0 Km
Bugan Farina
1,1 Km
MD Market
1,3 Km
Bar Bar
MiViDa
280 m
BRÓ Eat.Drink
420 m
Winebar Savoy
1,3 Km
Bar Atlantic
1,7 Km
I Golosini
1,7 Km
Ristoranti Ristoranti
Grano Puro
270 m
One Love Restaurant
360 m
Ristorante Le Tentazioni del bracere
910 m
Mamma Mia
950 m
Le voci del mare
1,1 Km
Mostra tutto

Caratteristiche

Rif.:
61170325
Piano:
Su più livelli di 3
Totale piani:
3
Box:
1
Posti auto:
1
Balconi:
1
Mostra tutto
Prezzo Prezzo
€ 530.000
Rata mutuo Rata mutuo
€ 2.498 / mese
Spese annue Spese annue
€ 0
Proponi il tuo prezzoProponi il tuo prezzo

Classe Energetica

G
G
G
G
G
G
G
G
G
EP globale non rinnovabile:
300.00 kW h/m² anno
EP globale rinnovabile:
300.00 kW h/m² anno
EP invernale del fabbricato:
EP estiva del fabbricato:
Anno di costruzione:
1940
Riscaldamento:
Autonomo
Tipo impianto:
A radiatori
Tipo alimentazione:
Altro

Ti interessa visionare l'immobile?

Fissa un appuntamento  Fissa un appuntamento

Richiedi informazioni

Clicca su Leggi per aprire l'informativa
* Questi campi sono obbligatori

Calcola il tuo mutuo

Semplice e senza impegno
Anticipo

( % )
Mutuo

( % )

pochi semplici passi

inserisci i tuoi dati
Questionario completato
Grazie per aver richiesto un appuntamento senza impegno con un nostro Consulente del Credito e Assicurativo.

Hai inserito correttamente tutti i dati necessari e a breve riceverai una e-mail con un link da convalidare per inviare i tuoi dati.
Affiliato
Tecnobergamo Srl
Via Moroni, 156 24122 Bergamo (BG)

Il nostro staff


  • Roberto Martinelli
    Affiliato

  • Gabriele Abruzzese
    Collaboratore

  • Alessandra Abruzzese
    Collaboratrice

  • Davide Foglieni
    Responsabile

  • Sara Giudici
    Collaboratrice

  • Yevgeniya Radchuk
    Collaboratrice
Via Moroni, 156 24122 Bergamo (BG)
Zona: Via Moroni - Villaggio Sposi - San Tomaso
Mostra su mappa
Orari: da lunedì a venerdi mattina 09:00 - 12:30 pomeriggio 14:30 - 20:00 sabato mattina 09:00 - 12:30 pomeriggio 14:30 - 18:00
Affiliato
Tecnobergamo Srl
Via Moroni, 156 24122 Bergamo (BG)

2026 Tecnocasa Franchising S.p.A. - P. IVA 08365160152 - Via Monte Bianco 60/A 20089 Rozzano (MI). Ogni agenzia ha un proprio titolare ed è autonoma. Privacy policy | Policy utilizzo | Cookie policy