Trilocale in vendita

Bergamo, Via delle Canovine - Carnovali
€ 99.000
3 locali 3 locali
60 Mq 60 Mq
1 bagno 1 bagno

Trilocale in vendita

Bergamo, Via delle Canovine - Carnovali

Descrizione annuncio

BERGAMO - CARNOVALI

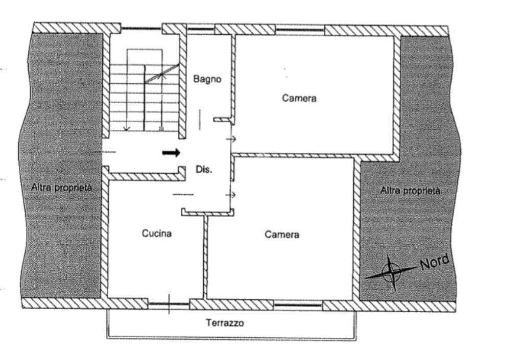
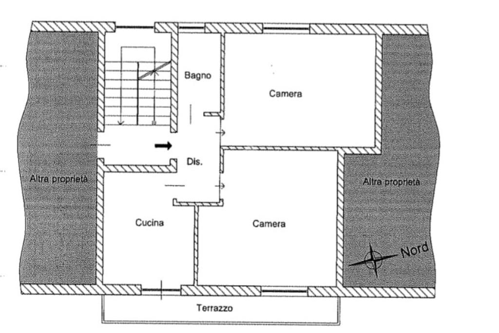
Proponiamo in vendita in Via Canovine appartamento TRILOCALE posto al primo piano di una tranquilla palazzina di sole quattro unità abitative.
L'immobile internamente si compone di: ingresso, cucina abitabile con aceesso al balcone, due camere da letto matrimoniali e bagno finestrato.
Completa la proprietà un comodo solaio privato al piano terzo ed una terrazza comune sempre all'ultimo piano.

Il riscaldamento è AUTONOMO e le spese
condominiali sono nulle, in comune hanno solo la bolletta dell'acqua ripartita per consumo.

L'immobile risulta ideale anche come investimento data la sua posizione strategica a pochi passi dal centro della città di Bergamo.

Affiliato: TECNOBERGAMO . Via Moroni, 121 24122 Bergamo (BG) - Tel. e WhatsApp: 035.044.31.03 //
Fax: 035.044.30.90 // E-mail: // Sito Web: // Pagina Instagram: // Pagina Facebook: //
Ogni agenzia ha un proprio titolare ed è autonoma. Il presente non costituisce elemento contrattuale.

Mostra tutto

Nelle vicinanze

Trasporto pubblico Trasporto pubblico
Bergamo
Bergamo
1,4 Km
Bergamo Bassa
Bergamo Bassa
2,2 Km
Bergamo FS
Bergamo FS
1,5 Km
Bergamo Borgo Palazzo
Bergamo Borgo Palazzo
2,3 Km
169
169
110 m
Ricariche auto elettriche Ricariche auto elettriche
A2A BG Ravizza
360 m
A2A BG Fast Canovine
380 m
Icelab Bergamo Palaghiaccio
460 m
A2A BG Cerasoli
700 m
A2A BG Parco Malpensata
910 m
Scuole Scuole
Scuole
370 m
Enaip
390 m
Opera S. Alessandro Santo Bambino Gesu'
400 m
Università degli Studi di Bergamo
650 m
Istituto Tecnico Aeronautico "Antonio Locatelli"
710 m
Farmacia Farmacia
Dottor Dottoressa Maria Grazia Scaccaglia
290 m
Farmacia Benetti
820 m
Farmacia Vaghi
940 m
Farmacia Campagnola
1,1 Km
Dott. Frizzi
1,1 Km
Ospedali Ospedali
Casa di Cura Beato Luigi Palazzolo
900 m
Associazione psicologia e psicoterapia Il Conventino
1,2 Km
Humanitas Gavazzeni
1,5 Km
Clinica Castelli
1,6 Km
Cups Clinica Castelli
1,6 Km
Supermercati Supermercati
Eurospin
250 m
Esselunga di Via San Bernardino
390 m
Coop
480 m
Famila Store
790 m
Conad
1,4 Km
Negozi Negozi
Bugan Farina
220 m
Celiachia Point Bergamo
310 m
Max Moda
460 m
Panificio Gilardi
530 m
Panificio "Bergamo Uno"
740 m
Bar Bar
Winebar Savoy
120 m
Bar Atlantic
430 m
Fantabosco
880 m
LET'S GO
920 m
Bar Sole e Luna
970 m
Ristoranti Ristoranti
Le voci del mare
240 m
Ristorante Le Tentazioni del bracere
400 m
Farina&Co.
480 m
Giropizza Lievito Madre
720 m
Eight Ristorante WOK
780 m
Mostra tutto

Caratteristiche

Rif.:
61146486
Piano:
1 di 3 (Piano medio)
Balconi:
1
Terrazzi:
1
Camere da letto:
2
Arredamento:
Parziale
Mostra tutto
Prezzo Prezzo
€ 99.000
Rata mutuo Rata mutuo
€ 467 / mese
Spese annue Spese annue
€ 100
Proponi il tuo prezzoProponi il tuo prezzo

Classe Energetica

G
G
G
G
G
G
G
G
G
EP globale non rinnovabile:
300.00 kW h/m² anno
EP globale rinnovabile:
300.00 kW h/m² anno
EP invernale del fabbricato:
EP estiva del fabbricato:
Anno di costruzione:
1970
Riscaldamento:
Autonomo
Tipo impianto:
A radiatori
Tipo alimentazione:
Metano

Ti interessa visionare l'immobile?

Fissa un appuntamento  Fissa un appuntamento

Richiedi informazioni

Clicca su Leggi per aprire l'informativa
* Questi campi sono obbligatori

Calcola il tuo mutuo

Semplice e senza impegno
Anticipo

( % )
Mutuo

( % )

pochi semplici passi

inserisci i tuoi dati
Questionario completato
Grazie per aver richiesto un appuntamento senza impegno con un nostro Consulente del Credito e Assicurativo.

Hai inserito correttamente tutti i dati necessari e a breve riceverai una e-mail con un link da convalidare per inviare i tuoi dati.
Affiliato
Tecnobergamo Srl
Via Moroni, 156 24122 Bergamo (BG)

Il nostro staff


  • Roberto Martinelli
    Affiliato

  • Gabriele Abruzzese
    Collaboratore

  • Davide Foglieni
    Responsabile

  • Sara Giudici
    Collaboratrice
Via Moroni, 156 24122 Bergamo (BG)
Zona: Via Moroni - Villaggio Sposi - San Tomaso
Mostra su mappa
Orari: da lunedì a venerdi mattina 09:00 - 12:30 pomeriggio 14:30 - 20:00 sabato mattina 09:00 - 12:30 pomeriggio 14:30 - 18:00
Affiliato
Tecnobergamo Srl
Via Moroni, 156 24122 Bergamo (BG)

2025 Tecnocasa Franchising S.p.A. - P. IVA 08365160152 - Via Monte Bianco 60/A 20089 Rozzano (MI). Ogni agenzia ha un proprio titolare ed è autonoma. Privacy policy | Policy utilizzo | Cookie policy