Trilocale in vendita

Bergamo, Via S. Bernardino - Carnovali
€ 135.000
3 locali 3 locali
86 Mq 86 Mq
1 bagno 1 bagno

Trilocale in vendita

Bergamo, Via S. Bernardino - Carnovali

Descrizione annuncio

BERGAMO - CARNOVALI

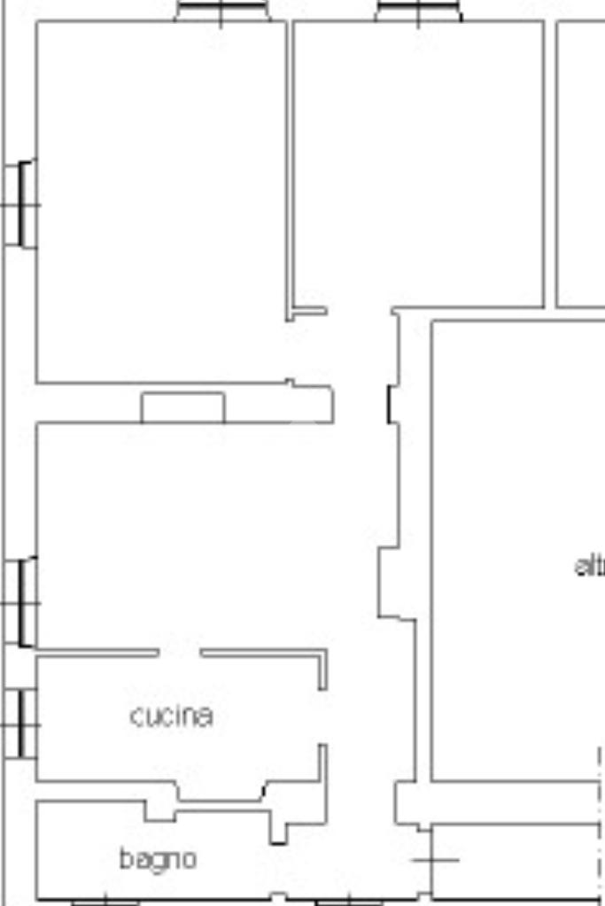
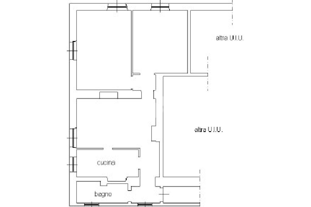
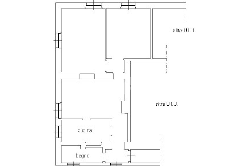
Proponiamo in vendita in Via San Bernardino, a pochi passi dall'ospedale Papa Giovanni XXIII, Università e dal centro città di Bergamo, appartamento TRILOCALE di 86 mq circa.

L'immobile è posto al piano secondo di una signorile palazzina, ed internamente si compone di: ingresso, soggiorno luminoso, cucina abitabile , bagno finestrato e due camere matrimoniali ampie .

Il riscaldamento è autonomo. Le spese condominiali ammontano a circa 500 Euro annui .Infissi e caldaia di recente sostituzione. L'immobile è attualmente affittato fino a Agosto 2026.

Affiliato: TECNOBERGAMO . Via Moroni, 121 24122 Bergamo (BG) - Tel. e WhatsApp: 035.044.31.03 //
Fax: 035.044.30.90 // E-mail: // Sito Web: // Pagina Instagram: // Pagina Facebook: //
Ogni agenzia ha un proprio titolare ed è autonoma. Il presente non costituisce elemento contrattuale.

Mostra tutto

Nelle vicinanze

Trasporto pubblico Trasporto pubblico
Bergamo
Bergamo
1,7 Km
Stezzano
Stezzano
2,5 Km
Bergamo FS
Bergamo FS
1,9 Km
Bergamo Borgo Palazzo
Bergamo Borgo Palazzo
2,6 Km
189
189
20 m
Ricariche auto elettriche Ricariche auto elettriche
Icelab Bergamo Palaghiaccio
210 m
A2A BG Ravizza
290 m
A2A BG Fast Canovine
670 m
A2A BG Scienza
790 m
A2A BG Cerasoli
950 m
Scuole Scuole
Enaip
140 m
Scuola materna Colognola
520 m
Scuole
600 m
Opera S. Alessandro Santo Bambino Gesu'
760 m
Scuola Media Statale "Muzio"
800 m
Farmacia Farmacia
Farmacia Vaghi
610 m
Dottor Dottoressa Maria Grazia Scaccaglia
620 m
Farmacia Benetti
1,1 Km
Farmacia Campagnola
1,2 Km
Farmacia Giassi
1,2 Km
Ospedali Ospedali
Casa di Cura Beato Luigi Palazzolo
1,3 Km
Associazione psicologia e psicoterapia Il Conventino
1,5 Km
Humanitas Gavazzeni
1,8 Km
Clinica Castelli
1,9 Km
Cups Clinica Castelli
2,0 Km
Supermercati Supermercati
Famila Store
440 m
Eurospin
620 m
Esselunga di Via San Bernardino
750 m
Coop
760 m
Conad
1,5 Km
Negozi Negozi
Bugan Farina
170 m
Alimentari Savoldelli Isaia
570 m
Celiachia Point Bergamo
610 m
Antico Forno di Grandi Dario
630 m
Panificio Gilardi
770 m
Bar Bar
Winebar Savoy
400 m
MiViDa
650 m
Bar Atlantic
770 m
Fantabosco
1,1 Km
BRÓ Eat.Drink
1,2 Km
Ristoranti Ristoranti
Ristorante Le Tentazioni del bracere
50 m
Le voci del mare
140 m
One Love Restaurant
580 m
Grano Puro
660 m
Farina&Co.
720 m
Mostra tutto

Caratteristiche

Rif.:
61132169
Piano:
2 di 3 (Piano medio)
Terrazzi:
1
Camere da letto:
2
Arredamento:
Completo
Condizionamento:
Assente
Mostra tutto
Prezzo Prezzo
€ 135.000
Rata mutuo Rata mutuo
€ 629 / mese
Spese annue Spese annue
€ 500
Proponi il tuo prezzoProponi il tuo prezzo

Classe Energetica

G
G
G
G
G
G
G
G
G
EP invernale del fabbricato:
EP estiva del fabbricato:
Anno di costruzione:
1900
Riscaldamento:
Autonomo
Tipo impianto:
A radiatori
Tipo alimentazione:
Metano

Ti interessa visionare l'immobile?

Fissa un appuntamento  Fissa un appuntamento

Richiedi informazioni

* Questi campi sono obbligatori

Calcola il tuo mutuo

Semplice e senza impegno
Anticipo

( % )
Mutuo

( % )

pochi semplici passi

inserisci i tuoi dati
Questionario completato
Grazie per aver richiesto un appuntamento senza impegno con un nostro Consulente del Credito e Assicurativo.

Hai inserito correttamente tutti i dati necessari e a breve riceverai una e-mail con un link da convalidare per inviare i tuoi dati.
Affiliato
Tecnobergamo Srl
Via Moroni, 156 24122 Bergamo (BG)

Il nostro staff


  • Roberto Martinelli
    Affiliato

  • Gabriele Abruzzese
    Collaboratore

  • Davide Foglieni
    Responsabile

  • Sara Giudici
    Collaboratrice
Via Moroni, 156 24122 Bergamo (BG)
Zona: Via Moroni - Villaggio Sposi - San Tomaso
Mostra su mappa
Orari: da lunedì a venerdi mattina 09:00 - 12:30 pomeriggio 14:30 - 20:00 sabato mattina 09:00 - 12:30 pomeriggio 14:30 - 18:00
Affiliato
Tecnobergamo Srl
Via Moroni, 156 24122 Bergamo (BG)

2025 Tecnocasa Franchising S.p.A. - P. IVA 08365160152 - Via Monte Bianco 60/A 20089 Rozzano (MI). Ogni agenzia ha un proprio titolare ed è autonoma. Privacy policy | Policy utilizzo | Cookie policy