Bilocale in vendita

Bergamo, Via Giovanni Battista Rampinelli - Colognola
€ 115.000
2 locali 2 locali
67 Mq 67 Mq
1 bagno 1 bagno

Bilocale in vendita

Bergamo, Via Giovanni Battista Rampinelli - Colognola

Descrizione annuncio

BERGAMO - COLOGNOLA

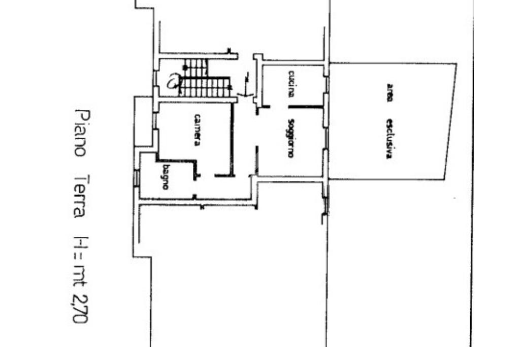
Proponiamo in vendita in Via Rampinelli appartamento BILOCALE posto al piano rialzato di una piccola palazzina di poche unità abitative.
L'immobile internamente si compone di: ingresso, soggiorno, cucina abitabile, giardino privato, camera da letto e bagno finestrato.
Completa la proprietà una comoda cantina al piano interrato.

Il riscaldamento è AUTONOMO e le spese
condominiali ammontano a circa 600 Euro
annui.
L'immobile risulta ideale anche come investimento data la sua posizione strategica a pochi passi dal centro della città di Bergamo.

Affiliato: TECNOBERGAMO . Via Moroni, 121 24122 Bergamo (BG) - Tel. e WhatsApp: 035.044.31.03 //
Fax: 035.044.30.90 // E-mail: // Sito Web: // Pagina Instagram: // Pagina Facebook: //
Ogni agenzia ha un proprio titolare ed è autonoma. Il presente non costituisce elemento contrattuale.

Mostra tutto

Nelle vicinanze

Trasporto pubblico Trasporto pubblico
Stezzano
Stezzano
1,9 Km
Bergamo
Bergamo
2,3 Km
Bergamo FS
Bergamo FS
2,4 Km
173
173
180 m
187
187
180 m
Ricariche auto elettriche Ricariche auto elettriche
A2A BG Scienza
520 m
Icelab Bergamo Palaghiaccio
610 m
A2A BG Ravizza
790 m
A2A BG Promessi Sposi
1,2 Km
A2A BG Fast Canovine
1,2 Km
Scuole Scuole
Scuola Media Statale "Muzio"
210 m
Scuola primaria Italo Calvino
320 m
Scuola materna Colognola
400 m
Istituto Superiore Bortolo Belotti
420 m
Enaip
640 m
Farmacia Farmacia
Farmacia Vaghi
280 m
Farmacia Giassi
1,2 Km
Dottor Dottoressa Maria Grazia Scaccaglia
1,2 Km
Nuova Farmacia Grumellina
1,4 Km
Farmacia Campagnola
1,5 Km
Ospedali Ospedali
Casa di Cura Beato Luigi Palazzolo
1,9 Km
Associazione psicologia e psicoterapia Il Conventino
2,1 Km
Ospedale Papa Giovanni XXIII
2,2 Km
Humanitas Gavazzeni
2,3 Km
Clinica Castelli
2,5 Km
Supermercati Supermercati
Famila Store
300 m
Eurospin
1,2 Km
Coop
1,3 Km
Esselunga di Via San Bernardino
1,4 Km
Conad
1,8 Km
Negozi Negozi
Antico Forno di Grandi Dario
100 m
Alimentari Savoldelli Isaia
170 m
Bugan Farina
770 m
Celiachia Point Bergamo
1,2 Km
Panificio "Bergamo Uno"
1,3 Km
Bar Bar
MiViDa
150 m
BRÓ Eat.Drink
730 m
Winebar Savoy
990 m
Bar Atlantic
1,4 Km
Fantabosco
1,6 Km
Ristoranti Ristoranti
Grano Puro
150 m
One Love Restaurant
180 m
Ristorante Le Tentazioni del bracere
570 m
Le voci del mare
740 m
Mamma Mia
1,2 Km
Mostra tutto

Caratteristiche

Rif.:
61112604
Piano:
Terra di 2
Totale piani:
2
Balconi:
1
Camere da letto:
1
Arredamento:
Parziale
Mostra tutto
Prezzo Prezzo
€ 115.000
Rata mutuo Rata mutuo
€ 532 / mese
Spese annue Spese annue
€ 600
Proponi il tuo prezzoProponi il tuo prezzo

Classe Energetica

G
G
G
G
G
G
G
G
G
EP globale non rinnovabile:
300.00 kW h/m² anno
EP globale rinnovabile:
300.00 kW h/m² anno
EP invernale del fabbricato:
EP estiva del fabbricato:
Anno di costruzione:
1990
Riscaldamento:
Autonomo
Tipo impianto:
A radiatori
Tipo alimentazione:
Metano

Ti interessa visionare l'immobile?

Fissa un appuntamento  Fissa un appuntamento

Richiedi informazioni

* Questi campi sono obbligatori

Calcola il tuo mutuo

Semplice e senza impegno
Anticipo

( % )
Mutuo

( % )

pochi semplici passi

inserisci i tuoi dati
Questionario completato
Grazie per aver richiesto un appuntamento senza impegno con un nostro Consulente del Credito e Assicurativo.

Hai inserito correttamente tutti i dati necessari e a breve riceverai una e-mail con un link da convalidare per inviare i tuoi dati.
Affiliato
Tecnobergamo Srl
Via Moroni, 156 24122 Bergamo (BG)

Il nostro staff


  • Roberto Martinelli
    Affiliato

  • Gabriele Abruzzese
    Collaboratore

  • Davide Foglieni
    Responsabile

  • Sara Giudici
    Collaboratrice
Via Moroni, 156 24122 Bergamo (BG)
Zona: Via Moroni - Villaggio Sposi - San Tomaso
Mostra su mappa
Orari: da lunedì a venerdi mattina 09:00 - 12:30 pomeriggio 14:30 - 20:00 sabato mattina 09:00 - 12:30 pomeriggio 14:30 - 18:00
Affiliato
Tecnobergamo Srl
Via Moroni, 156 24122 Bergamo (BG)

2025 Tecnocasa Franchising S.p.A. - P. IVA 08365160152 - Via Monte Bianco 60/A 20089 Rozzano (MI). Ogni agenzia ha un proprio titolare ed è autonoma. Privacy policy | Policy utilizzo | Cookie policy